IDEASDEBOMBERO.COM con Metodologías para la lucha contra incendios

Este es uno de los trabajos que en su día realice en esta empresa (COMPLEJO LOGISTICO) y recuerdo que los planteamientos expuestos fueron copiados y difundidos como novedosos en otras empresas, eran los años 80. Fue una tarea continua y laboriosa, la empresa iba creciendo y se añadieron nuevos edificios, adaptando las instrucciones de seguridad a los mismos, hasta completar las dimensiones del complejo que se pueden observar.
Actualmente ignoro si le puede servir a alguien lo aquí expuesto, (no estoy al corriente de las actuales normativas) pero me sentía orgulloso dado que, todas las propuestas, instrucciones, recomendaciones, surgieron de reflexiones y planteamientos propios, sin información externa que me sirviera de referencia.
He omitido gran parte de las instrucciones, metodologías y datos, se trata de dar una idea de como planteaba la organización de seguridad en las fábricas a las que prestaba asesoramiento para prevenir y teórico-prácticas al personal para combatir los incendios que se pudieran producir en sus instalaciones.
Actualmente este complejo con sus edificio ya no existen, en su lugar ha quedado un amplio solar













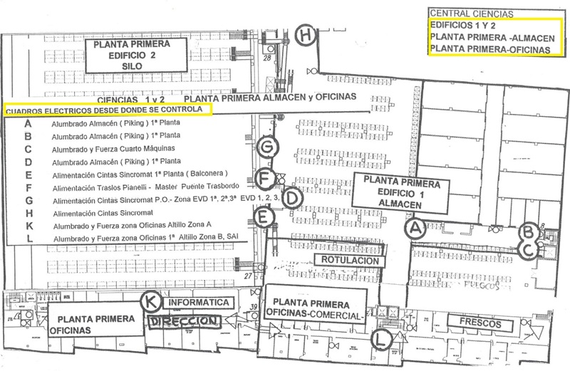
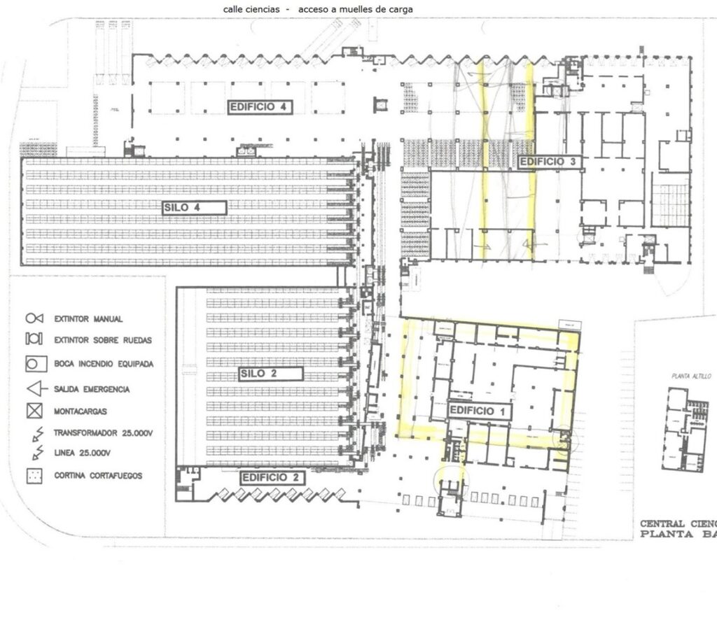
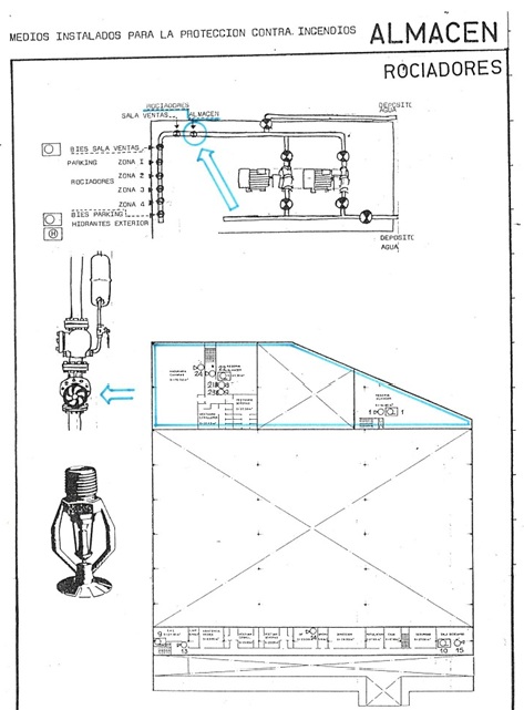
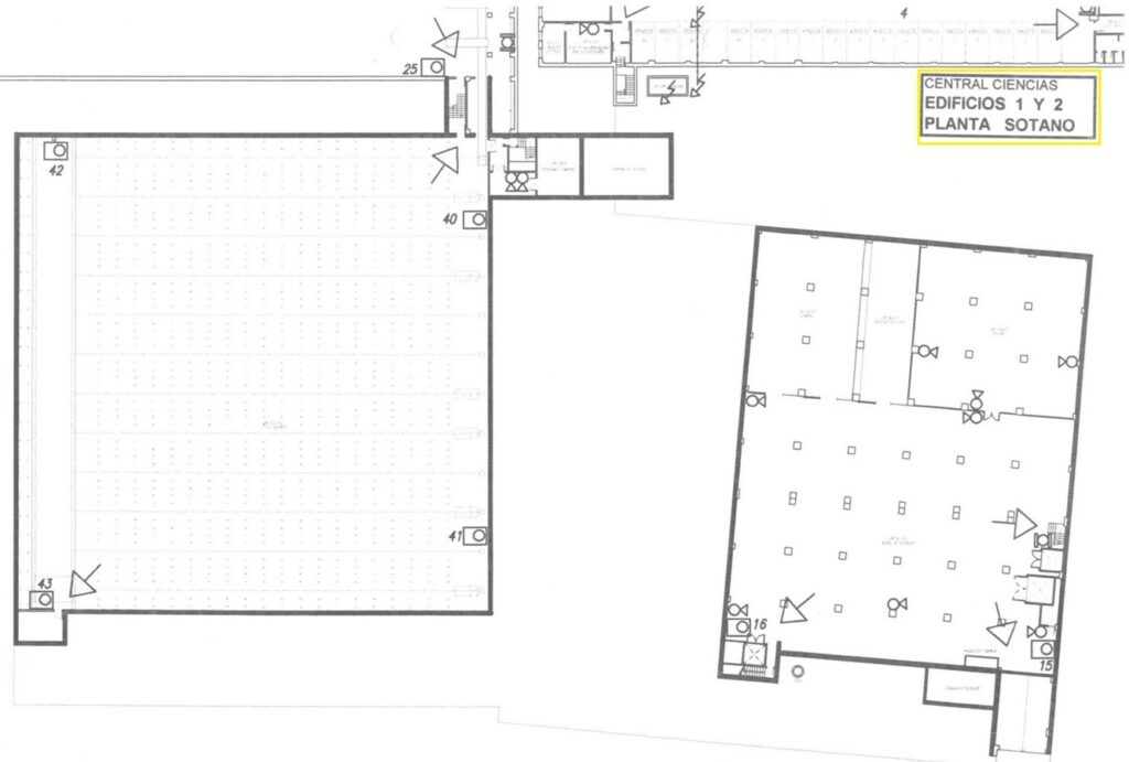
CONTROL DE LOS ELEMENTOS DE AGUA CONTRA INCENDIOS
La entrada al cuarto de bombas contra incendios: En primer plano se observan dos electrobombas eléctricas y una autobomba de gasoil conectadas a un gran número de tuberías que se introducen en el techo y en el suelo.
Cada tubería dispone de una válvula de apertura y cierre cubriendo un sector de cada uno de los edificios.
Además de un croquis general de la instalación ce agua. Cada una de las tuberías y válvulas disponen de una indicación gráfica de las zonas y sectores que protegen en caso de incendio o averías.









CONTROL EXTINTORES PORTATILES Y BOCAS DE AGUA – REVISIÓN, PRECINTADO Y TIMBRADO



No se si actualmente estos planteamientos pueden ser útiles para alguien pero aquí quedan expuestos.